詳細說明
ZSHL(ZSHT)氣動三通調節球閥的標準球芯有L型三通雙口孔道和T型三口孔道。改變球芯與管道的相對角度,可對三支管流體實現不同的組合控制。T型孔道可使三條正交的管道互相連通,也可以使其中兩條管道連通而切斷另一條管道。
一、ZSHL(ZSHT)氣動三通球閥概述
ZSHL(ZSHT)氣動三通球閥的標準球芯有L型三通雙口孔道和T型三口孔道。改變球芯與管道的相對角度,可對三支管流體實現不同的組合控制。T型孔道可使三條正交的管道互相連通,也可以使其中兩條管道連通而切斷另一條管道。L型孔道只能連通互相正交的兩條管道或切換方向。即T型孔道起分流合流作用,L型孔道起分配作用。
氣動三通球閥配用雙作用或單作用RC氣動活塞執行機構(大口徑配用ZSH橫裝活塞執行機構)。
二、ZSHL(ZSHT)氣動三通球閥閥體
型 式: | 兩開式鑄造球閥 |
公稱通徑: | 15~200 |
公稱壓力: | PN1.6,4.0,6.4MPa,JIS10K,ANSI150 |
連接形式: | 法蘭式 法蘭標準按JB/T79.1 PN1.6MPa JB/T79.2凹凸面ANSI B16.5,JIS,B2201 |
材 料: | Zg25 ZG1Cr18Ni9 ZG0Cr17Ni12Mo2 |
介質溫度: | 常溫型:-40℃~+180℃ |
填 料: | 聚四氟乙烯或R.TFE(增強聚四氟乙烯) |
三、ZSHL(ZSHT)氣動三通球閥閥內組件
球閥型式: | T型、L型球芯 |
球芯材料: | 不銹鋼 |
閥座材料: | 聚四氟乙烯PTFE |
球芯轉角: | 90° |
四、 ZSHL(ZSHT)氣動三通球閥執行機構
型 式: | RC,ZSH氣缸活塞執行機構 |
氣源接頭: | Rc1/8,Rc1/4,Rc1/2 |
環境溫度: | -40℃~+80℃ |
附件:電磁閥、行程開關等
五、 ZSHL(ZSHT)氣動三通球閥控制方式
L型三通雙口: | 有A、B二種見圖1 |
T型三通雙口: | 有C、D二種見圖2 |

六、ZSHL(ZSHT)氣動三通球閥性能
泄漏量:常溫球閥(聚四氟乙烯閥座),試驗介質為水。
公稱通徑(mm) | 15 | 20 | 25 | 40 | 50 | 65 | 80 | 100 | 150 | |
泄漏量 ml/min | PN1.6 | 0.08 | 0.11 | 0.13 | 0.21 | 0.27 | 0.35 | 0.43 | 0.553 | 0.80 |
PN4.0. | 0.32 | 0.43 | 0.53 | 0.85 | 1.1 | 1.4 | 1.7 | 2.1 | 3.2 | |
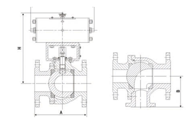
七、ZSHL(ZSHT)氣動三通球閥外形尺寸

PN1.6
公稱通徑 | 執行機構 | A | L | H | B | |
雙作用 | 單作用 | |||||
15 | RC20-DA | RC20-SR | 140 | 187(300) | 234 | 70 |
25 | RC40-SR | 165 | 187(460) | 259 | 82.5 | |
40 | RC40-DA | 230 | 320(460) | 265 | 115 | |
50 | RC60-SR | 230 | 320(680) | 342 | 115 | |
65 | 270 | 397 | 135 | |||
80 | 290 | 405 | 145 | |||
100 | RC60-DA | 350 | 548(680) | 427 | 175 | |
150 | RC80-SR | 440 | 548(920) | 613 | 220 | |
200 | ZSH-7 | ZSH-7S | 580 | 1040(1387) | 736 | 290 |
備注:括號內為配單作用執行機構尺寸
PN4.0/6.4
公稱通徑 | 執行機構 | A | L | H | B | |
雙作用 | 單作用 | |||||
15 | RC40-DA | RC40-SR | 195 | 320 (460) | 290.5 | 97.5 |
25 | RC60-SR | 230 |
| 300 | 115 | |
40 | RC60-DA | 250 | 320(680) | 387.5 | 125 | |
50 | RC80-SR | 290 | 548(680) | 415 | 145 | |
65 | 320 | 439 | 160 | |||
80 | 350 | 452 | 175 | |||
100 | RC80-DA | 406 | 640(920) | 616 | 203 | |
150 | ZSH-7S | 530 | 640(1387) | 740 | 265 | |
備注:括號內為配單作用執行機構尺寸
八、 ZSHL(ZSHT)氣動三通球閥訂貨須知
1· ZSHL(ZSHT)氣動三通球閥型號名稱
2· ZSHL(ZSHT)氣動三通球閥公稱通徑、公稱壓力
3· ZSHL(ZSHT)氣動三通球閥閥體材料
4· ZSHL(ZSHT)氣動三通球閥球芯型式(T型還是L型)
5· ZSHL(ZSHT)氣動三通球閥控制方式(A、B、C、D)
6· ZSHL(ZSHT)氣動三通球閥執行機構型號
7· ZSHL(ZSHT)氣動三通球閥附件(電磁閥、行程開關、手輪)
上一個:氣動V型調節球閥 下一個:ZSHOF-16C氣動O型切斷閥 襯氟球閥



相關新聞
相關產品
精小型單座調節閥
ZZYW自力式差(微)壓調節閥
氣動對夾蝶閥D671
氣動V型調節球閥
A105防爆電動高壓調節閥T948Y