詳細說明
ZZY型自力式壓力調節閥無需外加能源,利用被調介質自身能量為動力源,引入執行機構控制閥芯位置,改變兩端的壓差和流量,使閥前(或閥后)壓力穩定。具有動作靈敏,密封性好,壓力設定點波動小等優點,廣泛應用于氣體、液體及蒸汽介質減壓穩壓或泄壓穩壓的自動控制。本系列調節閥作用型式有減壓用閥后壓力調節(B型)和泄壓用閥前壓力調節(K型)。壓力分段調節從15~250KPa??砂葱枰M合滿足用戶工況要求。
一、ZZY型自力式壓力調節閥概述
該系列壓差控制閥是無需外加能源,利用被調介質自身能量為動力源,引入執行機構控制閥芯位置,改變兩端的壓差和流量,使閥前(或閥后)壓力穩定。具有動作靈敏,密封性好,壓力設定點波動小等優點,廣泛應用于氣體、液體及蒸汽介質減壓穩壓或泄壓穩壓的自動控制。
ZZY型自力式壓力調節閥有單座(ZZYP)、套筒(ZZYM)、雙座(ZZYN)三種結構:執行結構有薄膜式、活塞式二種:作用型式有減壓用閥后壓力調節(B型)和泄壓用閥前壓力調節(K型)。產品公稱壓力等級有PN16、40、64;閥體口徑范圍DN20~300;泄漏量等級有II級、IV級和VI能三檔;流量特性為快開;壓力分段調節從15~250MPa??砂葱枰M合滿足用戶工況要求。
二、ZZY型自力式壓力調節閥閥體
閥體形式: | 直通鑄造閥 |
公稱通徑: | DN25 、32 、40 、50 、65 、80 、100 、200 、250、300 |
公稱壓力: | PN 1.6、2.5、4.0、6.4、10Mpa |
| ANSI 150、300、 600Lb |
| JIS 10K、20K、30K |
連接方式: | 法蘭 FF、RF、RTJ、等 |
焊接: | SW、BW |
法蘭距: | 符合IEC 534 |
閥蓋形式: | 標準型、加長型(散熱、低溫、波紋管密封) |
填料: | V型聚四氟乙烯、柔性石墨填料等 |
密封墊: | 金屬夾石墨密封墊 |
執行機構: | 自立式彈簧執行機構 |
三、ZZY型自力式壓力調節閥內部件
閥芯型式: | 單座、套筒、雙座 |
流量特性: | 等百分比、線性 |
內件材質: | 標準材質組合及使用溫度、壓力范圍請參閱附錄 |
四、ZZY型自力式壓力調節閥可提供的選擇
閥體 | 型式 | 直通 | 閥蓋 | 型式 | 標準、加長型 |
材質 | WCB、WC9、CF8、CF8M等 | 材質 | WCB、WC9、CF8、CF8M | ||
閥芯 | 特性 | 直線、等百分比、快開 | 填料 | “V”型PTFE、柔性石墨、波紋管 | |
材質 | 304304+STL/PTFE316316+STL/PTFE | ||||
執行器 | 自立式彈簧執行機構 | ||||
定位器 | - | ||||
附件 | 導壓管、接頭 | ||||
五、ZZY型自力式壓力調節閥性能參數
公稱通徑(DN) | 20 | 25 | 32 | 40 | 50 | 65 | 80 | 100 | 125 | 150 | 200 | 250 | 300 | |||||||||||
額定流量系數(KV) | 7 | 11 | 20 | 30 | 48 | 75 | 120 | 190 | 300 | 480 | 760 | 1100 | 1750 | |||||||||||
額定行程(mm) | 8 | 10 | 14 | 20 | 25 | 40 | 50 | 60 |
| |||||||||||||||
公稱壓力(MPa) | 1.6 4.0 6.4 | |||||||||||||||||||||||
壓力調節范圍(Mpa) | 15~50 40~80 60~140 120~220 160~220 200~260 | |||||||||||||||||||||||
流量特性 | 快開 | |||||||||||||||||||||||
調節精度% | ±5 | |||||||||||||||||||||||
使用溫度(℃) | ≤350 | |||||||||||||||||||||||
1、允許泄漏量 | 硬密封(1/h) | 單座:≤10-4閥額定容量(IV)級;雙座、套筒:≤5×10-4閥額定容量(II級) | ||||||||||||||||||||||
軟密封(1/h) | 0.15 | 0.30 | 0.45 | 0.60 | 0.90 | 1.7 | 4.0 | 6.75 | 11.10 | 16.0 | ||||||||||||||
2、減壓比 | 大 | 10 | ||||||||||||||||||||||
小 | 1.25 | |||||||||||||||||||||||
六、ZZY型自力式壓力調節閥型號意義

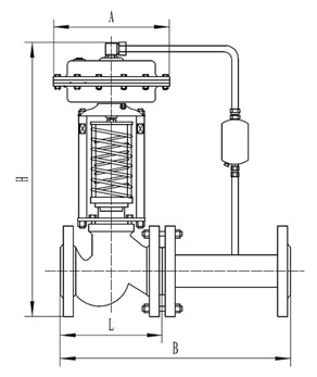
七、ZZY自力式壓差控制閥外形尺寸與重量

法蘭接管尺寸(B) | 383 | 512 | 603 | 862 | 1023 | 1380 | 1800 | 2000 | 2200 | ||||||
法蘭端面距(L) | 150 | 160 | 180 | 200 | 230 | 290 | 310 | 350 | 400 | 480 | 600 | 730 | 850 | ||
壓力調節范圍(Kpa) | 15-140 | H | 475 | 520 | 540 | 710 | 780 | 840 | 880 | 915 | 940 | 1000 | |||
A | 280 | 308 | |||||||||||||
200-500 | H | 455 | 500 | 520 | 690 | 760 | 800 | 870 | 880 | 900 | 950 | ||||
A | 230 | ||||||||||||||
120-300 | H | 450 | 490 | 510 | 680 | 750 | 790 | 860 | 870 | 890 | 940 | ||||
A | 176 | 194 | 280 | ||||||||||||
480-1000 | H | 445 | 480 | 670 | 740 | 780 | 850 | 860 | 880 | 930 | |||||
A | 176 | 194 | 280 | ||||||||||||
600-1500 | H | 445 | 570 | 600 | 820 | 890 | 950 | 1000 | 1100 | 1200 | |||||
A | 85 | 96 | |||||||||||||
1000-2500 | H | 445 | 570 | 600 | 820 | 980 | 950 | 1000 | 1100 | 1200 | |||||
A | 85 | 96 | |||||||||||||
重量(Kg) | 26 | 37 | 42 | 72 | 90 | 114 | 130 | 144 | 180 | 200 | 250 | ||||
導壓管接頭螺紋 | M1.6×1.5 | ||||||||||||||
八、ZZY型自力式壓力調節閥訂貨須知
1、ZZY型自力式壓力調節閥名稱、型號。
2、 ZZY型自力式壓力調節閥 公稱通徑(mm)及公稱壓力(MPa)。
3、 ZZZY型自力式壓力調節閥額定流量系數(Kv)。
4、ZZY型自力式壓力調節閥閥介質名稱。
5、 ZZY型自力式壓力調節閥工作溫度及范圍。
9、 ZZY型自力式壓力調節閥所配附件
上一個:ZZYW自力式差(微)壓調節閥 下一個:自力式微壓調節閥/供氮閥



相關新聞
相關產品
氣動薄膜襯氟單座閥 流量調節閥
自力式壓力調節閥ZZY系列
氣動三通調節閥
氣動防爆球閥
氣動全不銹鋼軟密封法蘭蝶閥D641X